Due to the health concerns created by Coronavirus we are offering personal 1-1 online video walkthough tours where possible.


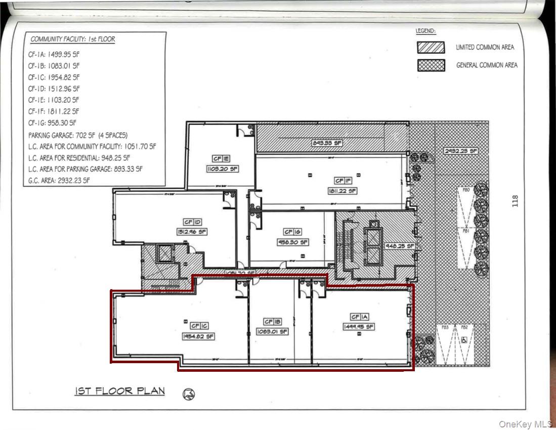
(Commercial Condo Package – Units A1, A2, A3) Commercial Space consisting of three ground-level Business Condo Units being sold together, totaling 4350 Sq.Ft.. Currently utilized as a Community Facility, the purchaser has the option to continue with the existing use, renegotiate with the tenant, or take possession vacant at closing. The tenant currently pays maintenance and all expenses except real estate taxes. The Public Assembly Code 4A allows for a wide variety of uses including Medical Offices, Houses of Worship, Educational or Music Facilities, and Daycare Centers. Multiple parking spaces are also available for purchase. Prime location in the heart of Flushing, near the #7 Subway Line, LIRR, multiple bus routes, and commuter mini-buses to NYC Chinatown and Brooklyn. Surrounded by banks, restaurants, supermarkets, retail stores, and the SkyView Shopping Center. Excellent opportunity for owner-users, investors, or developers seeking a high-visibility Flushing location with flexible use options.
| yesterday | Price changed to $4,799,999 | |
| yesterday | Listing updated with changes from the MLS® | |
| 3 months ago | Status changed to Active | |
| 3 months ago | Listing first seen on site |
Did you know? You can invite friends and family to your search. They can join your search, rate and discuss listings with you.