Due to the health concerns created by Coronavirus we are offering personal 1-1 online video walkthough tours where possible.




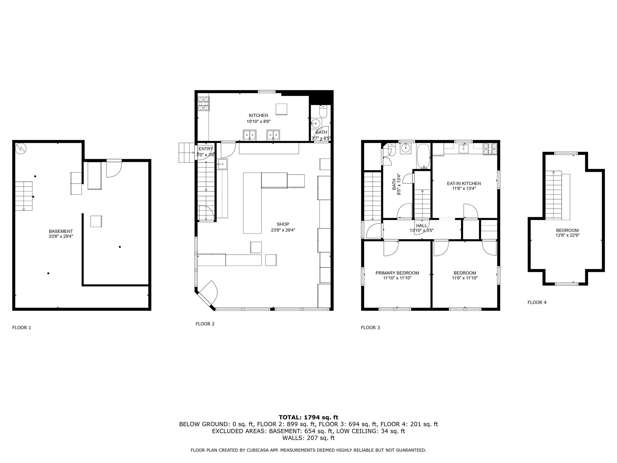
High-Visibility Mixed-Use Property Offering Immediate Cash Flow Located at 870 Nassau Road, this well-positioned mixed-use property offers strong visibility. Conveniently located near a High-traffic zone, the Southern State Parkway, Meadowbrook Parkway, Hofstra University, Molloy University, Nassau Community College, Roosevelt Field Mall, public transportation, parks, and a variety of local shops and restaurants. Situated in the desirable Uniondale School District, this mixed-use property is a fantastic opportunity for both homeowners and investors alike. The ground floor features a deli with access to a full basement used for storage, occupied by a reliable tenant. Upstairs is a spacious 3-bedroom, 1-bath apartment with ample storage, currently rented on a month-to-month basis—offering flexibility for future use or owner occupancy. A large private parking lot enhances accessibility and value, while the property offers strong income and development potential—a smart opportunity for investors seeking long-term upside. Property can be delivered partially vacant, with potential for full vacancy subject to terms. *Some property features have been virtually enhanced for visual presentation, Actual condition may differ from in-person viewing* As-is Sale: all information provided is subject to buyer's independent due diligence.
| 2 months ago | Status changed to Active | |
| 2 months ago | Price changed to $1,274,999 | |
| 2 months ago | Listing updated with changes from the MLS® | |
| 2 months ago | Listing first seen on site |
Did you know? You can invite friends and family to your search. They can join your search, rate and discuss listings with you.